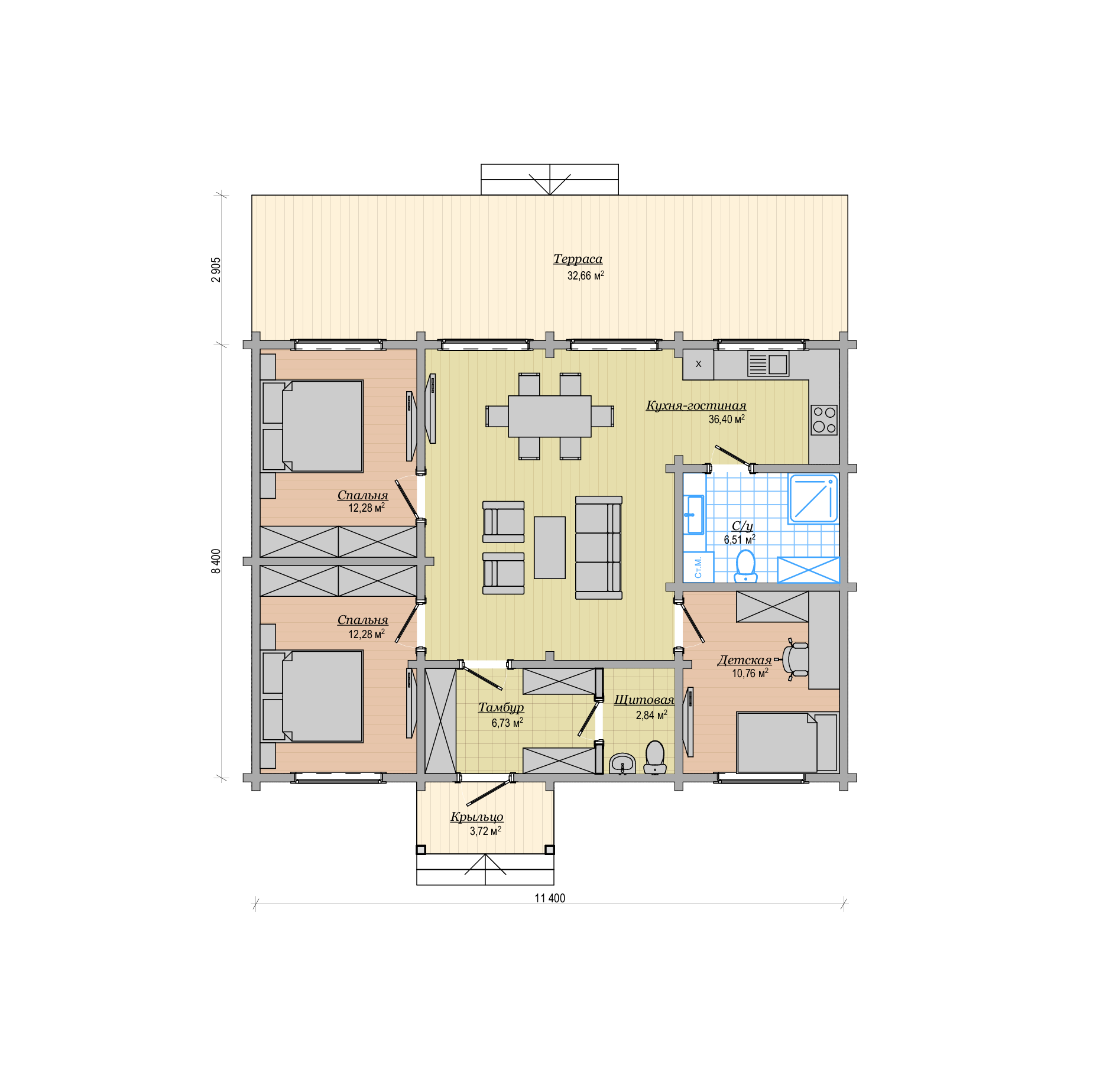
Готовый проект одноэтажного дома из клееного бруса с 3 спальнями, большой кухней-гостиной, с/у, прихожей и просторной террасой.
ЯМ-321 — это архитектурно-строительный (АС) альбом формата А4 с подробными чертежами и техническими данными для гос. регистрации и рационального строительства дома от фундамента до кровли, с необходимыми печатями и подписями нашей проектной компании. Характеристики дома по проекту ВЗ-321: — Общая площадь: 124 м² — Габариты: 11.5 х9 м — Несущие стены: брус 200х190 мм — Фундамент основного строения: монолитная плита h=250 мм с ростверком h=200 мм — Фундамент террасы и крыльца: жб сваи 150 х150 х 3000 мм — Перекрытия: по деревянным балкам — Кровля: мягкая черепица — Высота дома: 4,2 м
Для чего нужен проект:
— Получить точный расчет сметы в любой строительной компании — Провести строительство дома без ошибок, проблем и переплат — Контролировать строителей на любом этапе возведения дома — Без проблем пройти регистрацию дома в гос. органах — Получить ипотеку на строительство дома
Пакет чертежей и технических данных ЯМ-321 является рабочей строительной документацией и полностью подготовлен как для успешного строительства самого дома, так и для юридического оформления строительства. Проект ЯМ-321 разработан под российский рынок строительных материалов и построить по нему дом сможет любая строительная фирма или бригада. Данный проект разработан нашими профессиональными архитекторами с учетом современных СНиПов и гостов. Мы гарантируем качество проекта и оказываем поддержку в ходе строительства, включая доработку чертежей под нужды Ваших строителей. Также, в Москве, Санкт-Петербурге и Вологде Вы можете заказать строительство этого дома в нашей компании - Вологодское зодчество.
Купить Готовый проект одноэтажного дома из бруса ЯМ-321 Миллер с панорамными окнами, 3 спальнями и большой гостиной с доставкой по всей России. Готовый проект одноэтажного дома из бруса ЯМ-321 Миллер с панорамными окнами, 3 спальнями и большой гостиной: сравнение цен, характеристики, фото, актуальное наличие и цены.