Готовый проект дома доставляется вам в PDF формате на USB флешке. Бонусом: проекты (более 20шт.) каркасных бань, навесов, гаражей, хоз. блоков.
Фундамент дома: Свайно-винтовой
Состав проекта (содержание на фото в карточке товара, 45 л.): 1. АР Архитектурные решения 2. КР Конструктивные решения
- 3D модель дома и каркаса (+программа для просмотра). - ЭП Эскизный проект (10-15 л.) - Карта распила пиломатериала (11 л.).
Справочная литература: 1. Инструкция по сборке каркасного дома. Узлы конструкций.(13 л.). 2. Видео-инструкция по карте распила пиломатериалов. 3. Памятка по возведению свайного поля
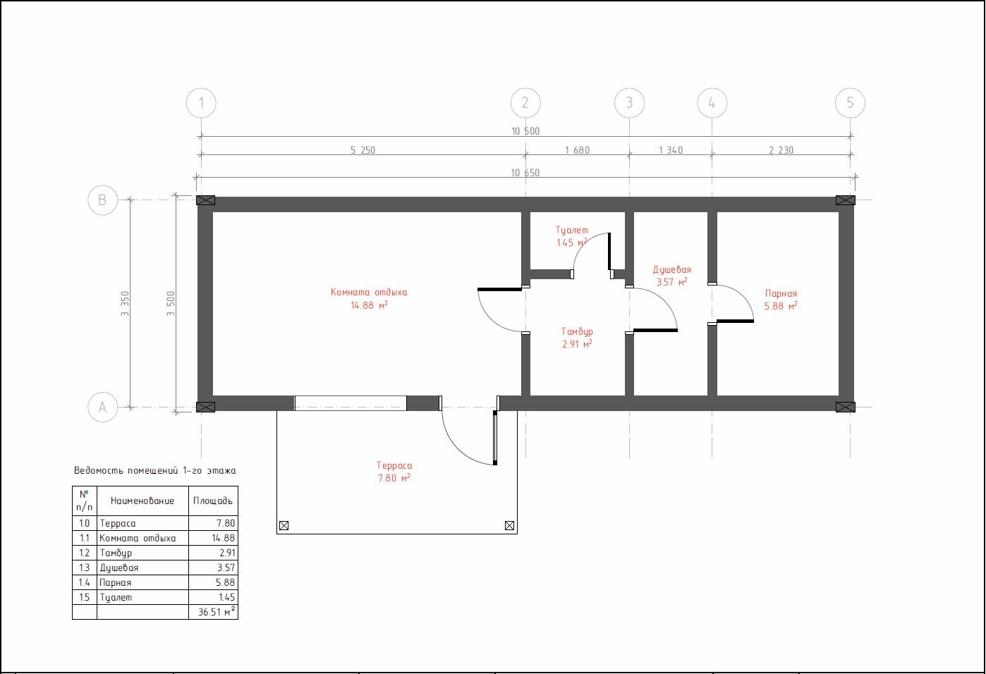
Готовый проект для строительства бани - это идеальное решение для тех, кто мечтает о собственном уютном уголке для отдыха и релаксации. Данный проект предлагает тщательно продуманную архитектуру, которая сочетает в себе функциональность и эстетический вид. В нем учтены все детали, необходимые для комфортного пребывания, включая удобные комнаты, зоны для отдыха и сауны.
Благодаря простоте реализации, вы сможете быстро и без лишних затрат приступить к строительству. Готовая документация включает все необходимые чертежи и схемы, что позволяет сэкономить время на разработку своего уникального проекта.
Независимо от того, хотите ли вы проводить время в компании друзей, наслаждаясь приятными процедурами, или просто уединиться с книгой, готовый проект для строительства бани позволит вам осуществить все ваши пожелания. Это не только удобный, но и экономичный вариант для создания такой важной части вашего загородного быта.
Не упустите возможность сделать свой загородный отдых максимально комфортным и приятным. Приобретая готовый проект, вы делаете первый шаг к собственному уютному пространству, созданному для расслабления и восстановления сил. Откройте новые горизонты в строительстве своего идеального уголка с данным проектом. Пусть ваша баня станет тем местом, где сбываются мечты о жизни на природе и мгновениях счастья в кругу близких.
Купить Готовый проект для строительства бани 28м2. Каркасная с террасой с доставкой по всей России. Готовый проект для строительства бани 28м2. Каркасная с террасой: сравнение цен, характеристики, фото, актуальное наличие и цены.